REKLAMA
Dziennik Ustaw - rok 2024 poz. 336
OBWIESZCZENIE
MINISTRA ZDROWIA1)
z dnia 20 lutego 2024 r.
w sprawie ogłoszenia jednolitego tekstu rozporządzenia Ministra Zdrowia w sprawie szpitalnego oddziału ratunkowego
1. Na podstawie art. 16 ust. 3 ustawy z dnia 20 lipca 2000 r. o ogłaszaniu aktów normatywnych i niektórych innych aktów prawnych (Dz. U. z 2019 r. poz. 1461) ogłasza się w załączniku do niniejszego obwieszczenia jednolity tekst rozporządzenia Ministra Zdrowia z dnia 27 czerwca 2019 r. w sprawie szpitalnego oddziału ratunkowego (Dz. U. z 2023 r. poz. 1225), z uwzględnieniem zmian wprowadzonych:
1) rozporządzeniem Ministra Zdrowia z dnia 28 czerwca 2023 r. zmieniającym rozporządzenie w sprawie szpitalnego oddziału ratunkowego (Dz. U. poz. 1237);
2) rozporządzeniem Ministra Zdrowia z dnia 22 grudnia 2023 r. zmieniającym rozporządzenie w sprawie szpitalnego oddziału ratunkowego (Dz. U. poz. 2782).
2. Podany w załączniku do niniejszego obwieszczenia tekst jednolity rozporządzenia nie obejmuje:
1) § 2 rozporządzenia Ministra Zdrowia z dnia 28 czerwca 2023 r. zmieniającego rozporządzenie w sprawie szpitalnego oddziału ratunkowego (Dz. U. poz. 1237), który stanowi:
„§ 2. Rozporządzenie wchodzi w życie z dniem 30 czerwca 2023 r.”;
2) § 2 rozporządzenia Ministra Zdrowia z dnia 22 grudnia 2023 r. zmieniającego rozporządzenie w sprawie szpitalnego oddziału ratunkowego (Dz. U. poz. 2782), który stanowi:
„§ 2. Rozporządzenie wchodzi w życie z dniem następującym po dniu ogłoszenia.”.
Minister Zdrowia: wz. W. Konieczny
1) Minister Zdrowia kieruje działem administracji rządowej - zdrowie, na podstawie § 1 ust. 2 rozporządzenia Prezesa Rady Ministrów z dnia 18 grudnia 2023 r. w sprawie szczegółowego zakresu działania Ministra Zdrowia (Dz. U. poz. 2704).
Załącznik do obwieszczenia Ministra Zdrowia
z dnia 20 lutego 2024 r. (Dz. U. poz. 336)
ROZPORZĄDZENIE
MINISTRA ZDROWIA1)
z dnia 27 czerwca 2019 r.
w sprawie szpitalnego oddziału ratunkowego
Na podstawie art. 34 ustawy z dnia 8 września 2006 r. o Państwowym Ratownictwie Medycznym (Dz. U. z 2023 r. poz. 1541, 1560 i 1972) zarządza się, co następuje:
§ 1. Rozporządzenie określa:
1) szczegółowe zadania szpitalnych oddziałów ratunkowych;
2) szczegółowe warunki prowadzenia segregacji medycznej w szpitalnych oddziałach ratunkowych;
3) szczegółowe wymagania dotyczące lokalizacji szpitalnych oddziałów ratunkowych w strukturze szpitala oraz warunków technicznych;
4) minimalne wyposażenie, organizację oraz minimalne zasoby kadrowe szpitalnych oddziałów ratunkowych.
§ 2. 1. Szpitalny oddział ratunkowy, zwany dalej „oddziałem”, udziela świadczeń opieki zdrowotnej polegających na wstępnej diagnostyce oraz podjęciu leczenia w zakresie niezbędnym dla stabilizacji funkcji życiowych osób, które znajdują się w stanie nagłego zagrożenia zdrowotnego:
1) przetransportowanych przez:
a) zespoły ratownictwa medycznego,
b) jednostki współpracujące z systemem Państwowe Ratownictwo Medyczne,
c) zespoły wyjazdowe, o których mowa w przepisach wydanych na podstawie art. 5 ust. 4 ustawy z dnia 20 marca 2009 r. o bezpieczeństwie imprez masowych (Dz. U. z 2023 r. poz. 616),
d) lotnicze zespoły poszukiwawczo-ratownicze, o których mowa w art. 140a ust. 5 ustawy z dnia 3 lipca 2002 r. - Prawo lotnicze (Dz. U. z 2023 r. poz. 2110), oraz podmioty, o których mowa w art. 140b ust. 3 tej ustawy,
e) podmioty realizujące transport sanitarny na podstawie zlecenia lekarza albo felczera, w ramach udzielania świadczeń opieki zdrowotnej finansowanych ze środków publicznych;
2) zgłaszających się samodzielnie.
2. W oddziale nie odbywają się przyjęcia osób skierowanych na leczenie szpitalne w trybie planowym.
§ 3. 1. Oddział lokalizuje się na poziomie wejścia dla pieszych i podjazdu specjalistycznych środków transportu sanitarnego, z osobnym wejściem dla pieszych oddzielonym od trasy podjazdu specjalistycznych środków transportu sanitarnego.
2. Wejście dla pieszych i podjazd dla specjalistycznych środków transportu sanitarnego są zadaszone, podjazd jest zamykany i otwierany automatycznie w celu ochrony przed wpływem czynników atmosferycznych, przelotowy dla ruchu specjalistycznych środków transportu sanitarnego oraz wyraźnie oznakowany wzdłuż drogi dojścia i dojazdu.
3. Zapewnia się bezkolizyjny dojazd specjalistycznych środków transportu sanitarnego pod oddział.
4. Wejście dla pieszych i podjazd dla specjalistycznych środków transportu sanitarnego organizuje się niezależnie od innych wejść i podjazdów do szpitala, przystosowując je również do potrzeb osób niepełnosprawnych.
5. Lokalizacja oddziału zapewnia łatwą komunikację z oddziałem anestezjologii i intensywnej terapii, blokiem operacyjnym, pracownią diagnostyki obrazowej oraz węzłem wewnątrzszpitalnej komunikacji pionowej.
6. Oddział posiada własne bezkolizyjne trakty komunikacyjne, niezależne od ogólnodostępnych traktów szpitalnych.
7. Oddział posiada całodobowe lotnisko, zlokalizowane w takiej odległości, aby było możliwe przyjęcie osób, które znajdują się w stanie nagłego zagrożenia zdrowotnego, bez pośrednictwa specjalistycznych środków transportu sanitarnego.
8. W przypadku braku możliwości spełnienia wymagań, o których mowa w ust. 7, oddział posiada całodobowe lądowisko, zlokalizowane w takiej odległości, aby było możliwe przyjęcie osób, które znajdują się w stanie nagłego zagrożenia zdrowotnego, bez pośrednictwa specjalistycznych środków transportu sanitarnego.
9. Lądowisko, o którym mowa w ust. 8, spełnia wymagania określone w załączniku do rozporządzenia.
10. W przypadku braku możliwości technicznych spełnienia wymagań określonych w ust. 7 lub 8 dopuszcza się odległość oddziału od lotniska lub lądowiska większą niż określona w ust. 7 lub 8, pod warunkiem że oddział zabezpieczy specjalistyczny środek transportu sanitarnego, a czas trwania transportu osób, które znajdują się w stanie nagłego zagrożenia zdrowotnego, specjalistycznym środkiem transportu sanitarnego do oddziału nie przekroczy 5 minut, licząc od momentu przekazania pacjenta przez lotniczy zespół ratownictwa medycznego do specjalistycznego środka transportu sanitarnego.
11. Projekt lotniska lub lądowiska wymaga uzyskania pozytywnej opinii podmiotu leczniczego utworzonego przez ministra właściwego do spraw zdrowia w celu realizacji zadań lotniczych zespołów ratownictwa medycznego.
§ 4. 1. Oddział organizuje się w szpitalu, w którym w lokalizacji oddziału znajdują się co najmniej:
1) oddział chirurgii ogólnej z częścią urazową, a w przypadku szpitala, który zgodnie z postanowieniami regulaminu organizacyjnego podmiotu wykonującego działalność leczniczą, o którym mowa w art. 24 ust. 1 ustawy z dnia 15 kwietnia 2011 r. o działalności leczniczej (Dz. U. z 2023 r. poz. 991, 1675 i 1972), udziela świadczeń zdrowotnych wyłącznie osobom do 18. roku życia lub osobom po ukończeniu 18. roku życia, którym świadczenia opieki zdrowotnej są udzielane jako kontynuacja wcześniej udzielanych świadczeń - oddział chirurgii dziecięcej;
2) oddział chorób wewnętrznych, a w przypadku szpitala, który zgodnie z postanowieniami regulaminu organizacyjnego podmiotu wykonującego działalność leczniczą, o którym mowa w art. 24 ust. 1 ustawy z dnia 15 kwietnia 2011 r. o działalności leczniczej, udziela świadczeń zdrowotnych wyłącznie osobom do 18. roku życia lub osobom po ukończeniu 18. roku życia, którym świadczenia opieki zdrowotnej są udzielane jako kontynuacja wcześniej udzielanych świadczeń - oddział pediatrii;
3) oddział anestezjologii i intensywnej terapii, a w przypadku szpitala, który zgodnie z postanowieniami regulaminu organizacyjnego podmiotu wykonującego działalność leczniczą, o którym mowa w art. 24 ust. 1 ustawy z dnia 15 kwietnia 2011 r. o działalności leczniczej, udziela świadczeń zdrowotnych wyłącznie osobom do 18. roku życia lub osobom po ukończeniu 18. roku życia, którym świadczenia opieki zdrowotnej są udzielane jako kontynuacja wcześniej udzielanych świadczeń - oddział anestezjologii i intensywnej terapii dla dzieci;
4) pracownia diagnostyki obrazowej;
5) miejsce udzielania świadczeń nocnej i świątecznej opieki zdrowotnej.
2. Oddział ma powierzchnię wystarczającą do prawidłowego funkcjonowania wszystkich jego obszarów wymienionych w § 5.
3. Na minimalne wyposażenie oddziału do przyłóżkowego wykonywania badań składa się:
1) analizator parametrów krytycznych;
2) przyłóżkowy zestaw RTG;
3) przewoźny ultrasonograf.
4. Szpital, w którym funkcjonuje oddział, zapewnia całodobowy i niezwłoczny dostęp do:
1) badań diagnostycznych wykonywanych w medycznym laboratorium diagnostycznym;
2) badania USG;
3) komputerowego badania tomograficznego;
4) badań endoskopowych, w tym: gastroskopii, rektoskopii, bronchoskopii, laryngoskopii.
§ 5. 1. W skład oddziału wchodzą obszary:
1) segregacji medycznej, rejestracji i przyjęć;
2) resuscytacyjno-zabiegowy;
3) wstępnej intensywnej terapii;
4) terapii natychmiastowej;
5) obserwacji;
6) konsultacyjny;
7) zaplecza administracyjno-gospodarczego.
2. W lokalizacji oddziału zapewnia się możliwość krótkotrwałej izolacji pacjenta, u którego stwierdzono chorobę zakaźną, lub z podejrzeniem zachorowania na chorobę zakaźną.
§ 6. 1. Obszar segregacji medycznej, rejestracji i przyjęć lokalizuje się bezpośrednio przy wejściu dla pieszych i podjeździe dla specjalistycznych środków transportu sanitarnego.
2. W obrębie obszaru segregacji medycznej, rejestracji i przyjęć zapewnia się:
1) przeprowadzenie wstępnej oceny osób, o których mowa w § 2 ust. 1, i bezkolizyjnego transportu tych osób do innych obszarów oddziału lub do innego oddziału szpitala;
2) jednoczesną segregację medyczną, rejestrację i przyjęcie co najmniej dwóch osób, o których mowa w § 2 ust. 1;
3) warunki niezbędne do przeprowadzenia wywiadu z zespołami, jednostkami lub podmiotami, o których mowa w § 2 ust. 1 pkt 1, oraz z osobą, która znajduje się w stanie nagłego zagrożenia zdrowotnego, lub z osobą jej towarzyszącą.
3. W obszarze segregacji medycznej, rejestracji i przyjęć zapewnia się odpowiednią liczbę desek ortopedycznych z kompletem pasów, na wymianę z zespołami ratownictwa medycznego.
4. W obrębie obszaru segregacji medycznej, rejestracji i przyjęć zapewnia się:
1) środki łączności na potrzeby łączności z zespołami ratownictwa medycznego, dyspozytorem medycznym, wojewódzkim koordynatorem ratownictwa medycznego, centrum urazowym, centrum urazowym dla dzieci oraz z jednostkami organizacyjnymi szpitala wyspecjalizowanymi w zakresie udzielania świadczeń zdrowotnych niezbędnych dla ratownictwa medycznego, a także kompleksową łączność wewnątrzszpitalną oraz niezależny stały nasłuch radiowy na kanale ogólnopolskim;
2) system bezprzewodowego przywoływania osób, o których mowa w § 12;
3) sprzęt niezbędny do segregacji medycznej i rejestracji osób, o których mowa w § 2 ust. 1, w ilości niezbędnej do zabezpieczenia prawidłowego funkcjonowania oddziału, w tym: automat biletowy, wyświetlacz zbiorczy, terminal stanowiskowy, wyświetlacz stanowiskowy, nabiurkowa drukarka do biletów, kardiomonitor i tablety medyczne dla osób przeprowadzających segregację medyczną;
4) co najmniej jedno pomieszczenie higieniczno-sanitarne wyposażone dodatkowo w natrysk i wózek-wannę, przystosowane dla osób niepełnosprawnych, w tym poruszających się na wózkach inwalidzkich;
5) stanowisko dekontaminacji;
6) gabinety do przeprowadzenia segregacji medycznej, w liczbie niezbędnej do prawidłowego funkcjonowania obszaru.
5. W przypadku braku możliwości zlokalizowania stanowiska dekontaminacji w obrębie obszaru segregacji medycznej, rejestracji i przyjęć dopuszcza się odstąpienie od tego wymagania, pod warunkiem zapewnienia możliwości niezwłocznego zorganizowania czasowego stanowiska dekontaminacji możliwie najbliżej wejścia dla pieszych i podjazdu specjalistycznych środków transportu sanitarnego do oddziału, w przypadku konieczności przeprowadzenia dekontaminacji.
6. Osoby, o których mowa w § 2 ust. 1 pkt 2:
1) pobierają w automacie biletowym bilet z oznaczeniem indywidualnego numeru oraz czasu przybycia do oddziału;
2) są rejestrowane na stanowisku rejestracji medycznej;
3) są niezwłocznie poddawane segregacji medycznej, w przebiegu której ich stan zdrowia jest oceniany pod względem ustalenia priorytetu udzielania im świadczeń zdrowotnych i przypisania do jednej z kategorii, o których mowa w ust. 9;
4) oczekują na pierwszy kontakt z lekarzem i kolejne etapy udzielenia im świadczeń zdrowotnych, o których mowa w § 2 ust. 1.
7. Segregację medyczną osób, o których mowa w § 2 ust. 1, przeprowadza pielęgniarka systemu, ratownik medyczny lub lekarz systemu przez przeprowadzenie wywiadu medycznego i zebranie danych służących ocenie stanu zdrowia osoby, o której mowa w § 2 ust. 1, i zakwalifikowaniu jej do jednej z kategorii, o których mowa w ust. 9, z wykorzystaniem systemu zarządzającego trybami obsługi pacjenta w szpitalnym oddziale ratunkowym, o którym mowa w art. 33a ust. 4 ustawy z dnia 8 września 2006 r. o Państwowym Ratownictwie Medycznym.
8. W razie potrzeby w ramach segregacji medycznej dodatkowo jest dokonywany pomiar poziomu glukozy we krwi włośniczkowej i temperatury ciała oraz jest wykonywane badanie EKG.
9. W wyniku przeprowadzonej segregacji medycznej osoba, o której mowa w § 2 ust. 1, jest przydzielana do jednej z pięciu kategorii zróżnicowanych pod względem stopnia pilności udzielenia jej świadczeń zdrowotnych, zwanej dalej „kategorią pilności”, gdzie:
1) kolor czerwony oznacza natychmiastowy kontakt z lekarzem;
2) kolor pomarańczowy oznacza czas oczekiwania na pierwszy kontakt z lekarzem do 10 minut;
3) kolor żółty oznacza czas oczekiwania na pierwszy kontakt z lekarzem do 60 minut;
4) kolor zielony oznacza czas oczekiwania na pierwszy kontakt z lekarzem do 120 minut;
5) kolor niebieski oznacza czas oczekiwania na pierwszy kontakt z lekarzem do 240 minut.
10. Pielęgniarka systemu, ratownik medyczny lub lekarz systemu informują osobę, o której mowa w § 2 ust. 1, lub osobę jej towarzyszącą o przydzielonej kategorii pilności oraz o liczbie osób i maksymalnym przewidywanym czasie oczekiwania na pierwszy kontakt z lekarzem.
11. Osoby, które zostały przydzielone do kategorii pilności oznaczonej kolorem zielonym lub niebieskim, mogą być kierowane z oddziału do miejsc udzielania świadczeń zdrowotnych z zakresu podstawowej opieki zdrowotnej.
12. Zasady kierowania osób, którym przydzielono kategorie pilności oznaczone kolorem zielonym lub niebieskim, do miejsc udzielania świadczeń zdrowotnych z zakresu podstawowej opieki zdrowotnej są określone w regulaminie organizacyjnym podmiotu wykonującego działalność leczniczą, o którym mowa w art. 24 ust. 1 ustawy z dnia 15 kwietnia 2011 r. o działalności leczniczej, i podane do publicznej wiadomości przez zamieszczenie na stronie internetowej tego podmiotu i wywieszenie na tablicy ogłoszeń w obszarze segregacji medycznej, rejestracji i przyjęć.
13. Za osoby przewiezione do oddziału przez zespoły, jednostki lub podmioty, o których mowa w § 2 ust. 1 pkt 1, bilet pobiera członek tego zespołu, jednostki lub podmiotu.
14. Osoby, o których mowa w § 2 ust. 1, pozostają na terenie oddziału pod opieką pielęgniarki systemu, ratownika medycznego lub lekarza systemu i w razie potrzeby poddawane są ocenie ich stanu klinicznego. Ocena stanu klinicznego dokonywana jest nie rzadziej niż co 90 minut, licząc od chwili pobrania biletu, a jej wyniki są odnotowywane w dokumentacji medycznej.
15. Czas wykonania wszystkich czynności wobec osoby, o której mowa w § 2 ust. 1, począwszy od pobrania biletu do zakończenia udzielania świadczeń zdrowotnych w oddziale, jest odnotowywany w systemie, o którym mowa w art. 33a ust. 4 ustawy z dnia 8 września 2006 r. o Państwowym Ratownictwie Medycznym.
§ 7. 1. Obszar resuscytacyjno-zabiegowy składa się co najmniej z dwóch sal resuscytacyjno-zabiegowych z jednym stanowiskiem resuscytacyjnym w każdej z tych sal albo jednej sali resuscytacyjno-zabiegowej z dwoma stanowiskami resuscytacyjnymi.
2. Wyposażenie i urządzenie obszaru resuscytacyjno-zabiegowego zapewnia co najmniej:
1) monitorowanie i podtrzymywanie funkcji życiowych;
2) prowadzenie resuscytacji krążeniowo-oddechowo-mózgowej;
3) prowadzenie resuscytacji okołourazowej;
4) wykonywanie podstawowego zakresu wczesnej diagnostyki i wstępnego leczenia urazów.
3. Minimalne wyposażenie w wyroby medyczne jednego stanowiska resuscytacyjnego stanowi:
1) stół zabiegowy z lampą operacyjną lub wózek transportowy z funkcją stołu zabiegowego;
2) aparat do znieczulania z wyposażeniem stanowiska do znieczulania, mobilny, jeden na dwa stanowiska obszaru;
3) zestaw do monitorowania czynności życiowych, w tym co najmniej: rytmu serca, ciśnienia tętniczego i żylnego, wysycenia tlenowego hemoglobiny, końcowo-wydechowego stężenia dwutlenku węgla, temperatury powierzchniowej i głębokiej ciała;
4) defibrylator z kardiowersją i opcją elektrostymulacji serca;
5) zestaw do przetaczania i dawkowania leków i płynów oraz zestaw do szybkiego przetaczania płynów;
6) elektryczne urządzenie do ssania;
7) centralne źródło tlenu, powietrza i próżni w liczbie nie mniejszej niż po dwa gniazda poboru na stanowisko;
8) aparat do powierzchniowego ogrzewania pacjenta;
9) zestaw do trudnej intubacji.
4. Na wyposażeniu obszaru resuscytacyjno-zabiegowego pozostają:
1) respirator transportowy - jeden na dwa stanowiska;
2) respirator stacjonarny - jeden na obszar;
3) aparat do ogrzewania płynów infuzyjnych - jeden na dwa stanowiska.
§ 8. 1. Do zadań obszaru wstępnej intensywnej terapii należy:
1) monitorowanie i podtrzymywanie funkcji życiowych;
2) prowadzenie resuscytacji krążeniowo-oddechowo-mózgowej;
3) wykonywanie pełnego zakresu wczesnej diagnostyki i wstępnego leczenia;
4) prowadzenie resuscytacji płynowej;
5) leczenie bólu;
6) wstępne leczenie zatruć.
2. W obszarze wstępnej intensywnej terapii lokalizuje się co najmniej jedno stanowisko intensywnej terapii umożliwiające wykonywanie zadań określonych w ust. 1.
§ 9. 1. Obszar terapii natychmiastowej składa się z sali:
1) zabiegowej;
2) opatrunków gipsowych.
2. Pomieszczenie sali zabiegowej jest wyposażone w wyroby medyczne i produkty lecznicze, umożliwiające wykonanie drobnych zabiegów chirurgicznych u osób, które znajdują się w stanie nagłego zagrożenia zdrowotnego.
3. Na minimalne wyposażenie sali zabiegowej składają się:
1) stół zabiegowy z lampą operacyjną lub wózek transportowy z funkcją stołu zabiegowego;
2) aparat do znieczulania z wyposażeniem stanowiska do znieczulania wraz z zestawem monitorującym;
3) nie mniej niż po dwa gniazda poboru tlenu, powietrza i próżni;
4) nie mniej niż osiem gniazd poboru energii elektrycznej;
5) zestaw niezbędnych narzędzi chirurgicznych na jedno stanowisko.
4. Sala opatrunków gipsowych jest wyposażona w wyroby medyczne i produkty lecznicze umożliwiające zakładanie opatrunków gipsowych, dostęp do źródła tlenu, powietrza i próżni; w sali opatrunków gipsowych zapewnia się przestrzeń do umieszczenia stanowiska do znieczulania z wyposażeniem.
§ 10. 1. W skład obszaru obserwacji wchodzą co najmniej cztery stanowiska o powierzchni wystarczającej dla prawidłowego funkcjonowania obszaru, wyposażone w:
1) wyroby medyczne i produkty lecznicze umożliwiające:
a) monitorowanie rytmu serca i oddechu,
b) nieinwazyjne monitorowanie ciśnienia tętniczego krwi,
c) monitorowanie wysycenia tlenowego hemoglobiny,
d) monitorowanie temperatury powierzchniowej,
e) stosowanie biernej tlenoterapii,
f) prowadzenie infuzji dożylnych;
2) przenośny zestaw resuscytacyjny z niezależnym źródłem tlenu i respiratorem transportowym;
3) defibrylator półautomatyczny lub manualny;
4) centralne źródło tlenu, powietrza i próżni z gniazdami poboru przy każdym stanowisku;
5) elektryczne urządzenie do odsysania, co najmniej jedno na cztery stanowiska.
2. Wymaganie, o którym mowa w ust. 1 pkt 3, nie dotyczy oddziału znajdującego się w szpitalu, który zgodnie z postanowieniami regulaminu organizacyjnego podmiotu wykonującego działalność leczniczą, o którym mowa w art. 24 ust. 1 ustawy z dnia 15 kwietnia 2011 r. o działalności leczniczej, udziela świadczeń zdrowotnych wyłącznie osobom do 18. roku życia lub osobom po ukończeniu 18. roku życia, którym świadczenia opieki zdrowotnej są udzielane jako kontynuacja wcześniej udzielanych świadczeń.
§ 11. 1. W skład obszaru konsultacyjnego wchodzą gabinety lub boksy badań lekarskich w liczbie niezbędnej do prawidłowego funkcjonowania obszaru. Gabinety lub boksy wewnętrzne są połączone traktem komunikacyjnym.
2. Wyposażenie obszaru konsultacyjnego w wyroby medyczne i produkty lecznicze umożliwia przeprowadzanie badań lekarskich i konsultacji specjalistycznych.
§ 12. 1. Minimalne zasoby kadrowe oddziału stanowią:
1)2) ordynator oddziału (lekarz kierujący oddziałem) będący lekarzem:
- posiadającym tytuł specjalisty w dziedzinie medycyny ratunkowej albo
- po drugim roku specjalizacji w dziedzinie medycyny ratunkowej, który kontynuuje szkolenie specjalizacyjne i posiada jednocześnie specjalizację lub tytuł specjalisty w dziedzinie anestezjologii i intensywnej terapii, chorób wewnętrznych, chirurgii ogólnej, chirurgii dziecięcej, ortopedii i traumatologii narządu ruchu, ortopedii i traumatologii, pediatrii, neurologii lub kardiologii;
2) pielęgniarka oddziałowa będąca pielęgniarką systemu albo ratownik medyczny lub pielęgniarka systemu, posiadający wykształcenie wyższe i co najmniej 5-letni staż pracy w oddziale, koordynujący pracę osób, o których mowa w pkt 4 i 5;
3) lekarze w liczbie niezbędnej do zabezpieczenia prawidłowego funkcjonowania oddziału, w tym do spełnienia warunków dotyczących czasu oczekiwania na pierwszy kontakt z lekarzem w poszczególnych kategoriach pilności, przy czym co najmniej jeden lekarz przebywający stale w oddziale będący lekarzem systemu;
4) pielęgniarki lub ratownicy medyczni w liczbie niezbędnej do zabezpieczenia prawidłowego funkcjonowania oddziału, w tym do zapewnienia realizacji zadań, o których mowa w § 6 ust. 7-11, 14 i 15;
5) rejestratorki medyczne oraz personel pomocniczy oddziału w liczbie niezbędnej do zabezpieczenia prawidłowego funkcjonowania oddziału, w tym do spełnienia warunków dotyczących czasu oczekiwania na pierwszy kontakt z lekarzem w poszczególnych kategoriach pilności.
2.3) Ordynator oddziału (lekarz kierujący oddziałem) lub wyznaczony przez niego spośród lekarzy systemu, o których mowa w ust. 1 pkt 3, lekarz posiadający tytuł specjalisty w dziedzinie medycyny ratunkowej albo lekarz po drugim roku specjalizacji w dziedzinie medycyny ratunkowej, który kontynuuje szkolenie specjalizacyjne i posiada jednocześnie specjalizację lub tytuł specjalisty w dziedzinie anestezjologii i intensywnej terapii, chorób wewnętrznych, chirurgii ogólnej, chirurgii dziecięcej, ortopedii i traumatologii narządu ruchu, ortopedii i traumatologii, pediatrii, neurologii lub kardiologii, zwani dalej „lekarzem dyżurnym oddziału”, koordynują pracę oddziału w systemie całodobowym.
3. Lekarz dyżurny oddziału:
1) udziela świadczeń zdrowotnych w oddziale;
2) kieruje pacjenta na leczenie do oddziałów szpitala, w którym działa oddział;
3) odmawia przyjęcia do oddziału osoby niebędącej w stanie nagłego zagrożenia zdrowotnego;
4) potwierdza lub wystawia skierowanie z oddziału na leczenie w innym szpitalu;
5) wystawia zlecenie na lotniczy transport sanitarny.
4. Dopuszcza się udział personelu realizującego świadczenia nocnej i świątecznej opieki zdrowotnej w udzielaniu świadczeń zdrowotnych w oddziale.
§ 13. 1. Kierownik podmiotu wykonującego działalność leczniczą prowadzącego szpital, w którym działa oddział:
1) określa w regulaminie organizacyjnym tego podmiotu maksymalny czas na podjęcie przez:
a) lekarza dyżurnego oddziału decyzji, o których mowa w § 12 ust. 3 pkt 2 i 3,
b) lekarza oddziału decyzji o przyjęciu pacjenta na oddział;
2) zapewnia w tym szpitalu kontynuację leczenia osób w stanie nagłego zagrożenia zdrowotnego, skierowanych na leczenie z oddziału.
2. Informacje, o których mowa w ust. 1 pkt 1, są podane do publicznej wiadomości przez zamieszczenie na stronie internetowej podmiotu wykonującego działalność leczniczą prowadzącego szpital, w którym działa oddział, i wywieszenie na tablicy ogłoszeń w obszarze segregacji medycznej, rejestracji i przyjęć.
3. Liczba łóżek w poszczególnych jednostkach organizacyjnych szpitala wyspecjalizowanych w zakresie udzielania świadczeń zdrowotnych niezbędnych dla ratownictwa medycznego, w którym znajduje się oddział, zabezpieczanych na potrzeby osób w stanie nagłego zagrożenia zdrowotnego skierowanych do tych jednostek z oddziału, jest ustalana przez kierownika podmiotu wykonującego działalność leczniczą prowadzącego szpital, po zasięgnięciu opinii ordynatorów oddziałów tych jednostek (lekarzy kierujących oddziałami), i podawana do wiadomości ordynatorów oddziałów jednostek (lekarzy kierujących oddziałami) oraz lekarza dyżurnego oddziału.
§ 14. W zakresie nieuregulowanym w niniejszym rozporządzeniu oddział spełnia także wymagania określone w przepisach wydanych na podstawie art. 22 ust. 3 ustawy z dnia 15 kwietnia 2011 r. o działalności leczniczej.
§ 15. Oddziały spełnią wymagania, o których mowa w:
1) § 13 ust. 1 pkt 1 oraz ust. 2 i 3 - do dnia 30 września 2019 r.;
2) § 6 ust. 3 - do dnia 31 grudnia 2019 r.;
3) § 6 ust. 2 pkt 3 - do dnia 30 czerwca 2020 r.;
3a) § 6 ust. 4 pkt 3 i ust. 6-15 - do dnia 1 lipca 2021 r.;
4) § 5 ust. 2 oraz § 6 ust. 4 pkt 4 i 6 - do dnia 1 lipca 2022 r.;
4a)4) § 4 ust. 1 pkt 5 - do dnia 30 czerwca 2024 r.;
5) § 3 ust. 7-10 - do dnia 31 grudnia 2024 r.
§ 16. Do dnia:
1)5) 30 czerwca 2024 r. ordynatorem oddziału (lekarzem kierującym oddziałem),
2) 31 grudnia 2026 r. wyznaczonym lekarzem, o którym mowa w § 12 ust. 2
- jest lekarz systemu.
§ 17. Obszar stacjonowania zespołów ratownictwa medycznego, o którym mowa w § 12 rozporządzenia Ministra Zdrowia z dnia 3 listopada 2011 r. w sprawie szpitalnego oddziału ratunkowego (Dz. U. z 2018 r. poz. 979), funkcjonujący na dzień wejścia w życie niniejszego rozporządzenia, może wchodzić w skład oddziału do dnia 31 grudnia 2019 r.
§ 18. Rozporządzenie wchodzi w życie z dniem 1 lipca 2019 r.6)
Załącznik do rozporządzenia Ministra Zdrowia
z dnia 27 czerwca 2019 r. (Dz. U. z 2024 r. poz. 336)
WYMAGANIA DLA LĄDOWISK
Rozdział 1. Wymagania ogólne
1. Lądowisko naziemne jest zlokalizowane bezpośrednio na powierzchni ziemi lub na konstrukcji, którego środek znajduje się nie wyżej niż 3,0 m ponad średnią wysokość terenu, na którym znajduje się lądowisko.
2. Lądowisko wyniesione jest zlokalizowane na budynku lub na konstrukcji, którego środek znajduje się na wysokości większej niż 3,0 m ponad średnią wysokością terenu, na którym jest usytuowane.
3. Konstrukcja lądowiska musi mieć zdolność przenoszenia obciążeń, wystarczających do przyjmowania przerwanego startu śmigłowców operujących w 1 klasie osiągów o maksymalnej masie do startu (MTOM) 5700 kg.
4. Lądowisko musi posiadać znak identyfikacyjny lądowiska, określony na rysunku 1 lub 2, oraz oznakowanie obwodu strefy FATO jak na rysunku 2.

Rysunek 1. Znak identyfikacyjny lądowiska dla śmigłowców na terenie szpitala


Rysunek 2. Znak identyfikacyjny lądowiska dla śmigłowców na terenie szpitala oraz oznakowanie punktu celowania i obwodu strefy FATO
5. Teren lądowiska zabezpiecza się przed dostępem osób postronnych. Teren ten jest chroniony i monitorowany przez służby szpitala, z rejestracją obrazu przez całą dobę na nośnikach umożliwiających odtworzenie zdarzeń.
6. Lądowisko oznacza się co najmniej dwiema tablicami informacyjnymi o wymiarach 297 mm x 420 mm, zgodnymi z wzorem określonym na rysunku 3 - dla lądowiska położonego na terenie ogólnodostępnym oraz na rysunku 4 - dla lądowiska położonego na terenie zamkniętym. Kolory liter i tła są dowolne, ale kontrastujące ze sobą. Dopuszcza się umieszczanie na tablicach symboli graficznych, w szczególności śmigłowca, lub logo szpitala.

Rysunek 3. Tablica informacyjna dla lądowiska na terenie ogólnodostępnym

Rysunek 4. Tablica informacyjna dla lądowiska na terenie zamkniętym
7. Lądowisko musi spełniać wymagania w zakresie ratownictwa i gaszenia pożarów zgodnie z tomem II załącznika 14 do Konwencji.
8. Lądowisko podlega obowiązkowi uzyskania wpisu do ewidencji lądowisk, prowadzonej przez Prezesa Urzędu Lotnictwa Cywilnego.
Rozdział 2. Wymagania dla lądowisk naziemnych
1. Lądowiskiem naziemnym jest obszar wyznaczony przez strefę podejścia końcowego i startu FATO z otaczającą ją strefą bezpieczeństwa (SA) oraz strefą przyziemienia i wznoszenia (TLOF).
2. Strefę podejścia końcowego i startu FATO stanowi możliwie płaska, pozioma, niepyląca nawierzchnia (niepokryta piaskiem, żwirem, kamieniami lub innym luźnym materiałem), utwardzona lub trawiasta, wolna od przeszkód, zapewniająca szybkie odprowadzenie wody, gdzie średnie nachylenie powierzchni nie może przekraczać 3% w każdym kierunku, a w żadnej części FATO nie może przekraczać 5%, w kształcie:
1) kwadratu o wymiarach co najmniej 25 m x 25 m lub 1,5D x 1,5D śmigłowca, dla którego jest przeznaczone lądowisko, gdzie „D” oznacza największy gabarytowy wymiar tego śmigłowca, w zależności od tego, która z tych wartości jest większa, albo
2) koła o średnicy co najmniej 25 m lub równej 1,5D śmigłowca, dla którego jest przeznaczone lądowisko, gdzie „D” oznacza największy gabarytowy wymiar tego śmigłowca, w zależności od tego, która z tych wartości jest większa.
3. Strefę bezpieczeństwa (SA) (rysunek 5) stanowi powierzchnia, która nie musi być powierzchnią stałą, ale:
1) rozciąga się na zewnątrz od obrzeża strefy końcowego podejścia i startu FATO na odległość co najmniej 3,0 m lub 0,25D śmigłowca, dla którego jest przeznaczone lądowisko, gdzie „D” oznacza największy gabarytowy wymiar tego śmigłowca, w zależności od tego, która z tych wartości jest większa;
2) nie znajdują się na niej obiekty stałe, z wyjątkiem obiektów łamliwych, które ze względu na swoją funkcję muszą znajdować się w tej strefie.
4. Minimalny wymiar strefy podejścia końcowego i startu FATO oraz strefy bezpieczeństwa (SA) wynosi 2D.

Rysunek 5. Strefa podejścia końcowego i startu FATO i związana z nią strefa bezpieczeństwa (SA)
5. Strefę przyziemienia i wznoszenia (TLOF), znajdującą się w środku strefy podejścia końcowego i startu FATO, stanowi możliwie płaska, pozioma, niepyląca, utwardzona nawierzchnia (beton, asfalt odporny na działanie wysokich temperatur, kostka brukowa), wolna od przeszkód, o właściwościach antypoślizgowych, zdolna do przenoszenia obciążeń dynamicznych określonych w rozdziale 1 ust. 3. Nachylenia w strefie TLOF muszą być wystarczające, aby zapobiec gromadzeniu się wody na jej powierzchni, ale nie mogą być większe niż 2% w każdą stronę, w kształcie:
1) kwadratu o wymiarach co najmniej 15 m x 15 m lub 0,9D x 0,9D śmigłowca, dla którego jest przeznaczone lądowisko, gdzie „D” oznacza największy gabarytowy wymiar tego śmigłowca, w zależności od tego, która z tych wartości jest większa, albo
2) koła o średnicy co najmniej 15 m lub 0,9D śmigłowca, dla którego jest przeznaczone lądowisko, gdzie „D” oznacza największy gabarytowy wymiar tego śmigłowca, w zależności od tego, która z tych wartości jest większa.
6. Schemat i zakres powierzchni ograniczających wysokość obiektów naturalnych i sztucznych w otoczeniu lądowiska naziemnego dla śmigłowców określa rysunek 6.

Rysunek 6. Schemat i zakres powierzchni ograniczających wysokość obiektów naturalnych i sztucznych w otoczeniu lądowiska naziemnego dla śmigłowców z kierunków podejścia i wznoszenia
7. Obiekty usytuowane w obszarze powierzchni lądowania i startu dla lądowiska naziemnego nie mogą być wyższe, niż wynika to z granicznej wysokości płaszczyzny o nachyleniu 1:6 na dystansie 1000 m od granicy strefy bezpieczeństwa (SA).
8. Płaszczyzna ograniczająca wysokość obiektów w obszarze płaszczyzny lądowania i startu rozszerza się o kąt równy 15% (dywergencja) w stosunku do krawędzi bocznych strefy bezpieczeństwa (SA). Szerokość powierzchni wznoszenia po starcie i powierzchni podejścia do lądowania wynosi 10D, ale nie mniej niż 150 m. Należy unikać obiektów punktowych (maszty, kominy, pojedyncze drzewa) w osi lądowania i startu.
9. Obiekty usytuowane w obszarze powierzchni bocznych i przejściowych nie mogą być wyższe niż wynika to z wysokości płaszczyzny o nachyleniu 1:2 i płaszczyzn przejściowych w odległości 90 m od strefy bezpieczeństwa (SA). W szczególnych przypadkach dopuszcza się istnienie przeszkód przebijających powierzchnię boczną i przejściową, pod warunkiem że są one zlokalizowane tylko po jednej stronie strefy bezpieczeństwa (SA), nie bliżej niż 10 m od jej granicy. Przeszkody oznacza się zgodnie z przepisami wydanymi na podstawie art. 92 ustawy z dnia 3 lipca 2002 r. - Prawo lotnicze (Dz. U. z 2023 r. poz. 2110).
10. Oś lądowania i startu lądowiska naziemnego jest zgodna z przeważającymi kierunkami wiatru na danym terenie. Kierunki startów i lądowań leżą na jednej prostej. Dopuszcza się skręcenie kierunku startu w stosunku do kierunku lądowania o maksymalnie 30° w prawo lub w lewo, zgodnie z rysunkiem 7.

Rysunek 7. Dopuszczalna zmiana kierunków osi lądowania i startu
11. Od strefy przyziemienia i wznoszenia TLOF prowadzi utwardzony ciąg komunikacyjny umożliwiający transport pacjenta na noszach, wózku transportowym lub innym środkiem transportu do lub z szpitalnego oddziału ratunkowego. Ciąg komunikacyjny doprowadzony jest do osi strefy bezpieczeństwa (SA) prostopadle do kierunku lądowania śmigłowca.
12. Sposób oznakowania poziomego lądowiska naziemnego musi być zgodny z tomem II załącznika 14 do Konwencji o międzynarodowym lotnictwie cywilnym, podpisanej w Chicago dnia 7 grudnia 1944 r. (Dz. U. z 1959 r. poz. 212, z późn. zm.7)), zwanej dalej „Konwencją”.
13. Lądowisko naziemne wyposaża się w integralny system oświetlenia, w skład którego wchodzą:
1) światła strefy przyziemienia i wznoszenia TLOF koloru białego;
2) światła strefy podejścia końcowego i startu FATO koloru białego;
3) światła kierunku podejścia koloru białego, przy czym:
a) dopuszcza się zastosowanie sześciu lamp świecących w kolorze białym, rozmieszczonych co 5 m wzdłuż osi podejścia do lądowania i startu, ustawionych na głównym kierunku podejścia do lądowania, zagłębionych lub naziemnych, wystających ponad poziom lądowiska nie więcej niż 25 cm, lub
b) światła kierunku podejścia mogą zostać zastąpione strzałkami kierunkowymi wyposażonymi co najmniej w cztery białe światła zagłębione, z zastrzeżeniem że strzałki stosuje się w przypadku zmiany kierunku startu w stosunku do kierunku lądowania; wymiary strzałki są określone w pkt 5.2.18 tomu II załącznika 14 do Konwencji;
4) oświetlony światłem białym wskaźnik kierunku wiatru;
5) światła przeszkodowe - lampy koloru czerwonego, umieszczone na obiektach mogących stanowić przeszkodę stałą, w tym na wskaźniku kierunku wiatru;
6) lampa identyfikacyjna lądowiska - dookólna lampa błyskowa, świecąca w kolorze białym, umieszczona w pobliżu strefy podejścia do lądowania i startu, w sposób uniemożliwiający oślepianie załogi śmigłowca; lampa jest instalowana na dachu najwyższego budynku stojącego w bezpośredniej bliskości lądowiska; światło lampy musi być widoczne z każdego kierunku z pokładu śmigłowca z odległości co najmniej 5000 m w warunkach lotu VFR;
7) świetlne systemy wspomagające określenie kierunku i kąta podejścia do lądowania, które instaluje się w przypadku lądowisk zlokalizowanych w miejscach wymagających precyzyjnego pozycjonowania śmigłowca podczas podejścia do lądowania.
14. W odległości co najmniej 20 m od krawędzi bocznej strefy podejścia końcowego i startu FATO umieszcza się oświetlony światłem białym wskaźnik kierunku wiatru, posiadający również nocne oznakowanie przeszkodowe. Wskaźnik musi spełniać wymagania określone w tomie II załącznika 14 do Konwencji.
15. Wskaźnik kierunku wiatru ustawia się w miejscu wolnym od przeszkód, które mogłyby wprowadzać błąd w jego wskazaniach (wskaźnik nie może być osłonięty od wiatru). Drugi oświetlony wskaźnik montuje się na dachu najwyższego budynku położonego w pobliżu lądowiska naziemnego. Wskaźnik kierunku lądowania musi być widoczny z lądowiska naziemnego.
Rozdział 3. Wymagania dla lądowisk wyniesionych
1. Do projektowania lądowisk wyniesionych, realizowanych na potrzeby szpitala, należy stosować zasady i zalecenia zawarte w tomie II załącznika 14 do Konwencji.
2. Dla lądowisk wyniesionych wyznacza się strefę podejścia końcowego i startu FATO z otaczającą ją strefą bezpieczeństwa (SA) oraz ze strefą przyziemienia i wznoszenia (TLOF).
3. Strefę podejścia końcowego i startu FATO stanowi możliwie płaska, pozioma, niepyląca, utwardzona nawierzchnia o właściwościach antypoślizgowych, zapewniająca szybkie odprowadzanie wody, gdzie średnie nachylenie powierzchni nie może przekraczać 2% w każdym kierunku, w kształcie:
1) kwadratu o wymiarach co najmniej 22,5 m x 22,5 m lub 1,5D x 1,5D śmigłowca, dla którego jest przeznaczone lądowisko, gdzie „D≥15 m” oznacza największy gabarytowy wymiar tego śmigłowca, w zależności od tego, która z tych wartości jest większa, albo
2) koła o średnicy co najmniej 22,5 m lub równej 1,5D śmigłowca, dla którego jest przeznaczone lądowisko, gdzie „D≥15 m” oznacza największy gabarytowy wymiar tego śmigłowca, w zależności od tego, która z tych wartości jest większa.
4. Strefę bezpieczeństwa (SA) stanowi powierzchnia, która nie musi być powierzchnią stałą, ale:
1) rozciąga się na zewnątrz od obrzeża strefy podejścia końcowego i startu FATO na odległość co najmniej 3,0 m lub 0,25D śmigłowca, dla którego jest przeznaczone lądowisko, gdzie „D≥15 m” oznacza największy gabarytowy wymiar tego śmigłowca, w zależności od tego, która z tych wartości jest większa;
2) nie znajdują się na niej obiekty stałe, z wyjątkiem obiektów łamliwych, które ze względu na swoją funkcję muszą znajdować się w tej strefie.
5. Strefę przyziemienia i wznoszenia TLOF, znajdującą się w środku strefy podejścia końcowego i startu FATO, stanowi możliwie płaska, pozioma, niepyląca, utwardzona nawierzchnia (beton, inne materiały konstrukcyjne odporne na działanie wysokich temperatur), wolna od przeszkód, zdolna do przenoszenia obciążeń dynamicznych określonych w rozdziale 1 ust. 3. Nachylenia w strefie przyziemienia i wznoszenia TLOF muszą być wystarczające, aby zapobiec gromadzeniu się wody na jej powierzchni, ale nie mogą być większe niż 2% w każdą stronę, w kształcie:
1) kwadratu o wymiarach co najmniej 0,9D x 0,9D śmigłowca, dla którego jest przeznaczone lądowisko, gdzie „D≥15m” oznacza największy gabarytowy wymiar tego śmigłowca, albo
2) koła o średnicy co najmniej 0,9D śmigłowca, dla którego jest przeznaczone lądowisko, gdzie „D≥15 m” oznacza największy gabarytowy wymiar tego śmigłowca.
6. Dla lądowisk wyniesionych strefa podejścia końcowego i startu FATO musi zapewniać wykorzystanie wpływu ziemi.
7. Powierzchnie ograniczające wysokość przeszkód muszą być zgodne z tomem II załącznika 14 do Konwencji.
8. Schemat i zakres powierzchni ograniczających wysokość obiektów naturalnych i sztucznych w otoczeniu lądowiska wyniesionego dla śmigłowców określa rysunek 8.

Rysunek 8. Schemat i zakres powierzchni ograniczających wysokość obiektów naturalnych i sztucznych w otoczeniu lądowiska wyniesionego dla śmigłowców z kierunków podejścia i wznoszenia
9. Obiekty usytuowane w obszarze powierzchni lądowania i startu dla lądowiska wyniesionego nie mogą być wyższe, niż wynika to z wysokości płaszczyzny o nachyleniu 1:22.2 na dystansie 3386 m od granicy strefy bezpieczeństwa (SA).
10. Płaszczyzna ograniczająca wysokość obiektów w obszarze płaszczyzny lądowania i startu rozszerza się o kąt równy 15% (dywergencja) w stosunku do krawędzi bocznych strefy bezpieczeństwa (SA). Szerokość powierzchni wznoszenia po starcie i powierzchni podejścia do lądowania wynosi 10D, ale nie mniej niż 150 m. Należy unikać obiektów punktowych (maszty, kominy, pojedyncze drzewa) w osi lądowania i startu.
11. W szczególnych przypadkach dopuszcza się istnienie przeszkód przebijających powierzchnię boczną i przejściową 1:2, pod warunkiem, że są one zlokalizowane tylko po jednej stronie strefy bezpieczeństwa (SA), nie bliżej niż 10 m od jej granicy. Przeszkody należy oznakować zgodnie z przepisami wydanymi na podstawie art. 92 ustawy z dnia 3 lipca 2002 r. - Prawo lotnicze.
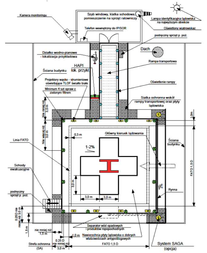
12. Oznakowanie, oświetlenie i wyposażenie lądowiska wyniesionego musi być zgodne z tomem II załącznika 14 do Konwencji. Rozmieszczenie elementów na lądowisku wyniesionym przedstawia schemat lądowiska w kształcie kwadratu (rysunek 9):
1) oznakowanie zawiera wymiar śmigłowca D, dla którego zostało zaprojektowane oraz dopuszczalną masę śmigłowca wyrażoną w tonach (t);
2) na płycie FATO umieszcza się oznakowanie identyfikujące lub nazwę własną lądowiska;
3) stosuje się oznakowania krawędzi płyty lądowiska, dróg ewakuacyjnych, progów, barierek zejść ewakuacyjnych, zgodne z zasadami bezpieczeństwa i higieny pracy;
4) oświetlenie lądowiska składa się z:
a) świateł strefy przyziemienia i wznoszenia TLOF, co najmniej 4 sztuk, koloru białego,
b) świateł strefy podejścia końcowego i startu FATO koloru zielonego rozmieszczonych równomiernie w odległości 1 m od zewnętrznej granicy tej strefy; odległość pomiędzy światłami nie przekracza 3 m,
c) świateł wskazujących kierunek lądowania i startu koloru białego umieszczonych w strzałkach; wymiary strzałki są określone w pkt 5.2.18 tomu II załącznika 14 do Konwencji,
d) projektorów oświetlenia ogólnego płyty lądowiska wyposażonych w osłony zabezpieczające przed oślepieniem oczu pilota, posiadających blokadę uniemożliwiającą równoczesne załączenie tych projektorów ze światłami FATO, TLOF,
e) świateł przeszkodowych koloru czerwonego, zainstalowanych na obiektach wysokich w rejonie lądowiska,
f) lampy identyfikacyjnej lądowiska - zainstalowanej na najwyższym obiekcie szpitala, w pobliżu lądowiska, w sposób uniemożliwiający oślepianie załogi śmigłowca. Światło lampy musi być widoczne z każdego kierunku z pokładu śmigłowca z odległości co najmniej 5000 m w warunkach lotu VFR,
g) oświetlonego wiatrowskazu zainstalowanego w sposób umożliwiający określenie kierunku wiatru w rejonie lądowiska; drugi oświetlony wiatrowskaz instaluje się na najwyższym obiekcie szpitala; wiatrowskaz musi być widoczny z płyty lądowiska,
h) świetlnych systemów wspomagania lądowania do naprowadzania azymutalnego oraz ścieżki schodzenia,
i) oświetlonych dróg komunikacyjnych i zejść ewakuacyjnych,
j) systemu zdalnego załączania i sterowania oświetleniem, dostępnego dla załogi śmigłowca.
13. Wokół lądowiska należy umieścić certyfikowaną siatkę zabezpieczającą przed upadkiem o szerokości minimum 1,5 m; właściwości siatki określono w tomie II załącznika 14 do Konwencji.
14. Lądowisko wyniesione musi spełniać wymagania w zakresie ratownictwa i gaszenia pożarów zgodnie z tomem II załącznika 14 do Konwencji, w zakresie wyposażenia w:
1) działko wodno-pianowe lub inne urządzenia gotowe do natychmiastowego użycia przez przeszkolony personel szpitala niewymagające zbliżania się do źródła ognia, dwa punkty przeciwpożarowe, w tym jeden z wytwornicą piany ciężkiej (spełnienie warunków zawartych w pkt 6.2.10 tomu II załącznika 14 do Konwencji; dla lądowisk kat H1 nie wymaga się równoczesności pracy systemów wytwarzania piany);
2) podręczny sprzęt przeciwpożarowy (gaśnice w liczbie zgodnej z kategorią pożarową lądowiska określoną w tab. 6-3 tomu II załącznika 14 do Konwencji);
3) podręczny sprzęt ratowniczy;
4) reflektor oświetlenia ogólnego płyty lądowiska załączany wraz z uruchomieniem systemu pożarowego;
5) wytyczone i oznakowane drogi ewakuacyjne prowadzące od dwóch zejść z płyty lądowiska o parametrach wymaganych w szpitalach (szerokość minimalna 1,4 m) prowadzących do klatek schodowych.
15. Lądowisko wyniesione posiada niezabudowaną przestrzeń - Airgap, o wysokości co najmniej 3 m, zlokalizowaną pomiędzy spodem płyty lądowiska a urządzeniami zainstalowanymi poniżej płyty lądowiska.
16. Lądowisko wyniesione musi być tak zaprojektowane i wykonane, aby nie oddziaływało negatywnie na funkcjonowanie obiektów i urządzeń szpitala ze szczególnym uwzględnieniem odziaływania hałasu, drgań oraz emisji spalin z silników śmigłowca.
17. Lądowisko wyniesione posiada system odprowadzania wody deszczowej, wyposażony w separator produktów ropopochodnych oraz środków pogaśniczych zabezpieczający przed przedostaniem się ich do systemu kanalizacyjnego.

Rysunek 9. Schemat rozmieszczenia elementów wyposażenia i oznakowania na lądowisku wyniesionym
1) Na dzień ogłoszenia obwieszczenia w Dzienniku Ustaw Rzeczypospolitej Polskiej działem administracji rządowej - zdrowie kieruje Minister Zdrowia, na podstawie § 1 ust. 2 rozporządzenia Prezesa Rady Ministrów z dnia 18 grudnia 2023 r. w sprawie szczegółowego zakresu działania Ministra Zdrowia (Dz. U. poz. 2704).
2) W brzmieniu ustalonym przez § 1 pkt 1 lit. a rozporządzenia Ministra Zdrowia z dnia 28 czerwca 2023 r. zmieniającego rozporządzenie w sprawie szpitalnego oddziału ratunkowego (Dz. U. poz. 1237), które weszło w życie z dniem 30 czerwca 2023 r.
3) W brzmieniu ustalonym przez § 1 pkt 1 lit. b rozporządzenia, o którym mowa w odnośniku 2.
4) Ze zmianą wprowadzoną przez § 1 rozporządzenia Ministra Zdrowia z dnia 22 grudnia 2023 r. zmieniającego rozporządzenie w sprawie szpitalnego oddziału ratunkowego (Dz. U. poz. 2782), które weszło w życie z dniem 28 grudnia 2023 r.
5) Ze zmianą wprowadzoną przez § 1 pkt 3 rozporządzenia, o którym mowa w odnośniku 2.
6) Niniejsze rozporządzenie było poprzedzone rozporządzeniem Ministra Zdrowia z dnia 3 listopada 2011 r. w sprawie szpitalnego oddziału ratunkowego (Dz. U. z 2018 r. poz. 979), które utraciło moc z dniem 1 lipca 2019 r. zgodnie z art. 20 pkt 4 ustawy z dnia 21 lutego 2019 r. o zmianie ustawy o świadczeniach opieki zdrowotnej finansowanych ze środków publicznych oraz niektórych innych ustaw (Dz. U. poz. 399, 999 i 1096).
7) Zmiany wymienionej konwencji zostały ogłoszone w Dz. U. z 1963 r. poz. 137 i 138, z 1969 r. poz. 210 i 211, z 1976 r. poz. 130, 131, 188, 189, 227 i 228, z 1984 r. poz. 199 i 200, z 2000 r. poz. 446 i 447, z 2002 r. poz. 527 i 528, z 2003 r. poz. 700 i 701, z 2012 r. poz. 368, 369, 370 i 371 oraz z 2016 r. poz. 541.
- Data ogłoszenia: 2024-03-08
- Data wejścia w życie: 2024-03-08
- Data obowiązywania: 2024-12-31
- Dokument traci ważność: 2025-11-26
- ROZPORZĄDZENIE MINISTRA ZDROWIA z dnia 22 maja 2024 r. zmieniające rozporządzenie w sprawie szpitalnego oddziału ratunkowego
- ROZPORZĄDZENIE MINISTRA ZDROWIA z dnia 16 grudnia 2024 r. zmieniające rozporządzenie w sprawie szpitalnego oddziału ratunkowego
REKLAMA
Dziennik Ustaw
REKLAMA
REKLAMA
